HAAG 1 Hakensystem

Metalldecke mit einhängbaren Rechteckplatten

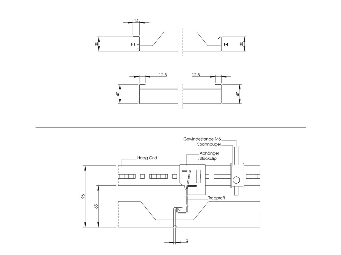
Das Metalldeckensystem HAAG 1 hat eine verdeckte Unterkonstruktion. Die einzelnen Rechteckplatten werden in das System eingehängt und sind einfach und werkzeuglos abnehmbar. Auf Wunsch kann die Decke anhebesicher ausgeführt werden.

  • Flexible Gestaltungsmöglichkeiten
  • Englische Verlegung möglich
  • Geeignet für Kühldecken

Technische Informationen

Abmessungen

Länge: ≤3000mm

Breite: ≤ 900mm (Grössere Breiten sind nach Absprache möglich. Eventuell sind zusätzliche Massnahmen zur Minimierung des physikalisch bedingten Durchhangs notwendig.)

Empfohlene Fläche: ≤1,25m²

 

Material und Oberfläche

Verzinktes Stahlblech, Aluminium: Standardpulverbeschichtung weiß (RAL 9010 matt). Schichtdicke: min. 60µm. Andere Farbtöne auf Wunsch möglich.

Aluminium: bandeloxiert oder spiegelglänzend.

Edelstahl: gebürstet oder spiegelglänzend.

 

Akustik und Perforation

Standardperforation: RD 1.5-22%. Weitere Perforationen sind auf Wunsch möglich.

Schallabsorption: standardmäßig über schwarzes Akustikvlies (αw= 0,70; NRC= 0,70).

 

Bedruckung

Pulverbeschichte Zuschnitte sind mit Motiven und Texturen bedruckbar.

 

Brandverhalten

Standard, glatt oder perforiert: A2-s1.dO nach EN13501-01 (nicht brennbar).